Capannone in vendita

Castelcovati, Via G. Matteotti
€ 760.000
4 locali 4 locali
1360 Mq 1360 Mq
4 bagni 4 bagni

Capannone in vendita

Castelcovati, Via G. Matteotti

Descrizione annuncio

COSA SAPERE DELL'IMMOBILE

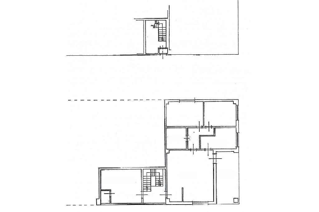
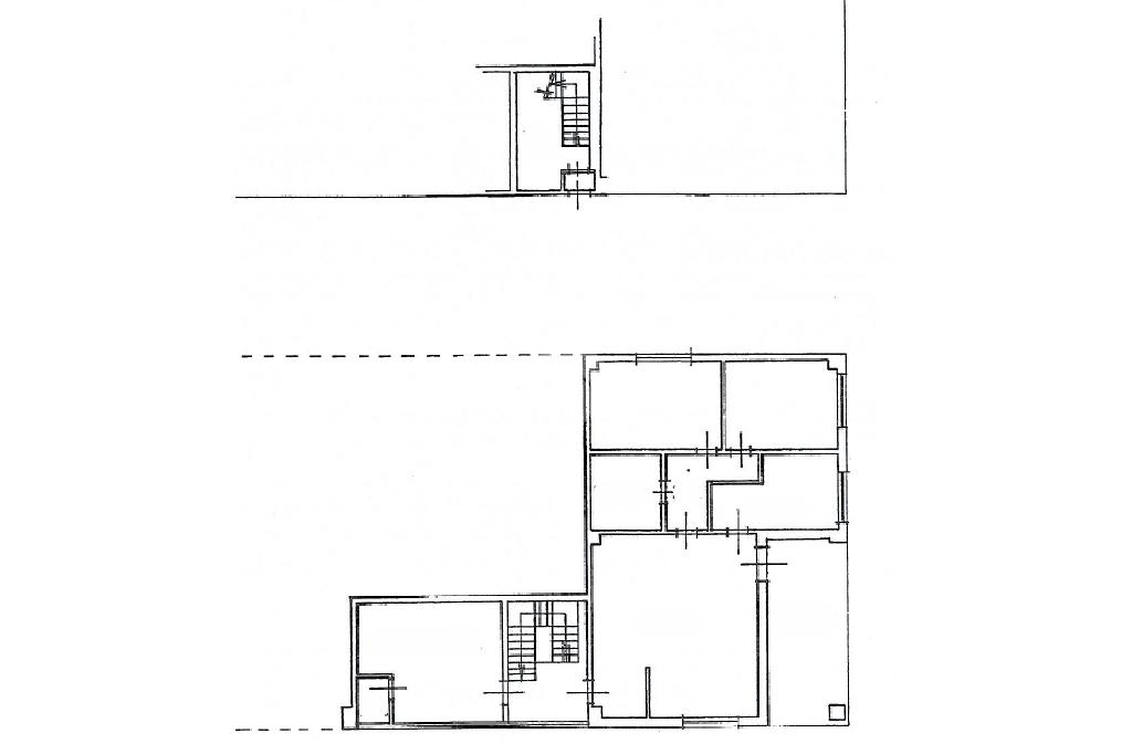
Proponiamo in vendita a reddito un capannone ad uso laboratorio di circa 1.360 metri quadrati, completo di due appartamenti di circa 200 metri quadrati l'uno, e di un'area esterna non esclusiva di circa 1.000 metri quadrati.

DESCRIZIONE E PARTICOLARITA'

L'immobile è costituito da un unico stabile che ospita quattro capannoni, per una superficie complessiva di circa 1.360 metri quadrati. I capannoni centrali hanno un'altezza interna di 7 metri e 6 metri di sottotrave, mentre quelli posti agli estremi hanno un'altezza interna di 3,5 metri. Tutti gli ambienti sono privi di pilastri interni, garantendo ampi spazi liberi. Sopra i due capannoni agli estremi si trovano due appartamenti, ciascuno di circa 200 metri quadrati, a servizio diretto degli stessi. L'accesso all'immobile avviene tramite un accesso carraio e un portone di ingresso con altezza utile di 4 metri. L'immobile è dotato di impianto elettrico e di illuminazione, ed è servito da quattro servizi igienici.

L'immobile è in vendita a reddito e garantisce una rendita del 2,4 %

UBICAZIONE E CONTESTO

L'immobile si trova nel comune di Castelcovati, in una zona mista residenziale e produttiva, ben integrata nel tessuto urbano del paese. L'area è facilmente accessibile e vicina alle principali vie di comunicazione locali.

Mostra tutto

Nelle vicinanze

Ricariche auto elettriche Ricariche auto elettriche
Conad Chiari | ENELX
2,5 Km
Scuole Scuole
Istituto Comprensivo Martin Luther King
150 m
Scuola secondaria di primo grado M. L. King
380 m
Istituto Comprensivo M. L. King
390 m
Scuole
2,8 Km
Farmacia Farmacia
Farmacia
200 m
Farmacia Zerbio
400 m
Parafarmacia Conad
2,5 Km
Supermercati Supermercati
Conad
2,4 Km
Eurospin
2,6 Km
Bar Bar
Skyline
150 m
Le Petit Cafè
250 m
Bocciodromo
280 m
BiancoLatte
390 m
Kikki di Pane
390 m
Ristoranti Ristoranti
Pizzeria Regina
260 m
Pizzeria lo Sfizio
390 m
Pizza Express Amalfitana
510 m
Pizzeria l'Oasi del Grillo
530 m
Area Ristoro
1,1 Km
Mostra tutto

Caratteristiche

Rif.:
61128015
Piano:
Terra di 1
Totale piani:
1
Posti auto:
10
Condizionamento:
Assente
Ascensore:
No
Mostra tutto
Prezzo Prezzo
€ 760.000
Rata mutuo Rata mutuo
€ 3.587 / mese
Spese annue Spese annue
€ 200
Proponi il tuo prezzoProponi il tuo prezzo

Altre caratteristiche

Descrizione dei locali
Bagno Con Finestra

Classe Energetica

Questo immobile è esente da classe energetica
Anno di costruzione:
1992
Riscaldamento:
Assente

Ti interessa visionare l'immobile?

Fissa un appuntamento  Fissa un appuntamento

Richiedi informazioni

Clicca su Leggi per aprire l'informativa
* Questi campi sono obbligatori

Calcola il tuo mutuo

Semplice e senza impegno
Anticipo

( % )
Mutuo

( % )

pochi semplici passi

inserisci i tuoi dati
Questionario completato
Grazie per aver richiesto un appuntamento senza impegno con un nostro Consulente del Credito e Assicurativo.

Hai inserito correttamente tutti i dati necessari e a breve riceverai una e-mail con un link da convalidare per inviare i tuoi dati.
Affiliato
Industriale Chiari Srl
Via Brescia, 41 25032 Chiari (BS)

Il nostro staff


  • Luca Coti Zelati
    Collaboratore

  • Michela Cavalleri
    Coordinatrice

  • Taslim Hasan
    Collaboratore

  • Nicolò Poli
    Collaboratore

  • Valentino Stellato
    Collaboratore

  • Federica Toresini
    Affiliata

  • Susanna Ye
    Collaboratrice
Via Brescia, 41 25032 Chiari (BS)
Zona: Chiari-Palazzolo-Orzinuovi-Ovest Bresciano
Mostra su mappa
Orari: Lunedì / Venerdì 08.30 12.30 - 13.30 19.00 Sabato 08.30 12.00
Affiliato
Industriale Chiari Srl
Via Brescia, 41 25032 Chiari (BS)

2025 Tecnocasa Franchising S.p.A. - P. IVA 08365160152 - Via Monte Bianco 60/A 20089 Rozzano (MI). Ogni agenzia ha un proprio titolare ed è autonoma. Privacy policy | Policy utilizzo | Cookie policy