Capannone in affitto

Orzinuovi, Via Musletti
€ 1.500 / mese
1 locale 1 locale
600 Mq 600 Mq
1 bagno 1 bagno

Capannone in affitto

Orzinuovi, Via Musletti

Descrizione annuncio

COSA SAPERE DELL'IMMOBILE

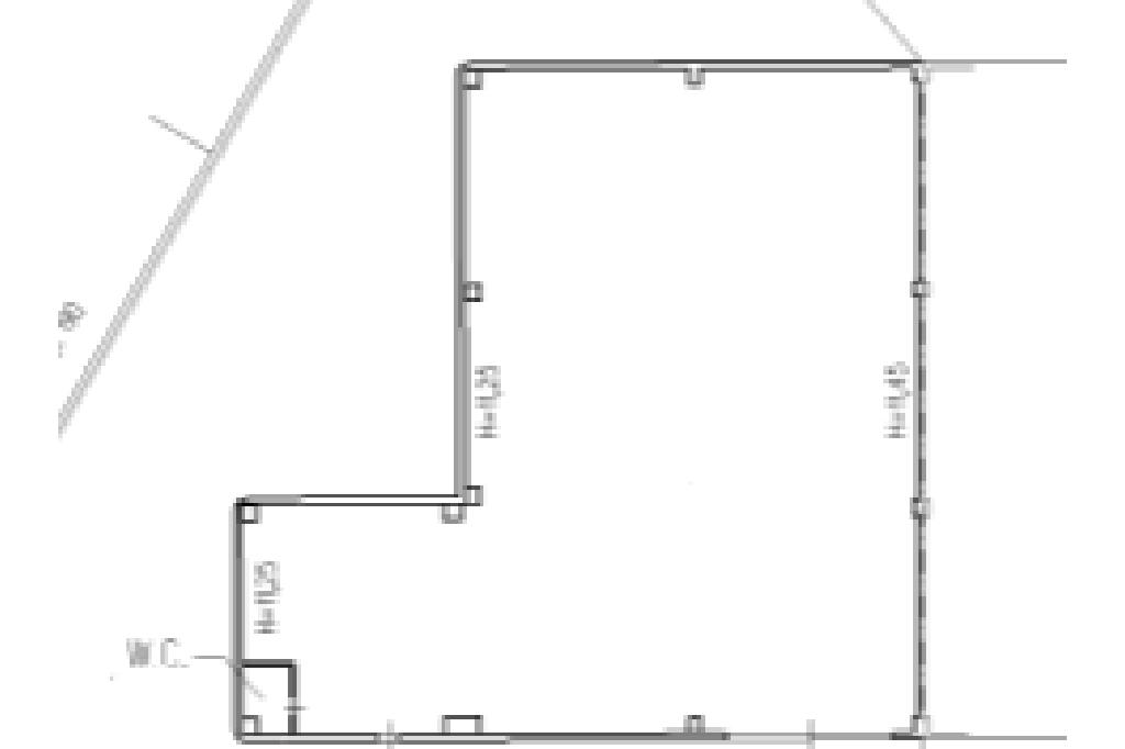
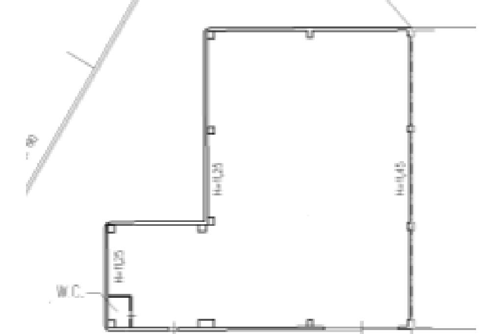
Proponiamo in vendita un capannone industriale di circa 600 metri quadrati, completo di uffici di circa 20 metri quadrati situati al piano terra, e di un'area esterna esclusiva di circa 100 metri quadrati.

DESCRIZIONE E PARTICOLARITÀ

Il capannone di 600 metri quadrati, si sviluppa interamente al piano terra e si presenta come un ambiente open space privo di pilastri, con un'altezza interna di 11 metri e un'altezza sottotrave di circa 10 metri quadrati. L'accesso avviene tramite un portone con altezza utile di 4,50 metri, oltre ad un accesso carraio. Gli uffici, per un totale di circa 20 mq, sono interamente distribuiti al piano terra direttamente collegati al capannone. L'immobile è dotato di impianto elettrico e impianto di illuminazione. È inoltre presente un servizio igienico privato. Completano la soluzione 100 mq di area esterna esclusiva.

UBICAZIONE E CONTESTO

L'immobile è ubicato nel Comune di Orzinuovi (BS), Si inserisce all'interno di un comparto a destinazione artigianale / industriale, con buone connessioni urbane. Inoltre ci sono circa una cinquantina di posti auto messi a disposizione della clientela.

Mostra tutto

Nelle vicinanze

Bar Bar
Kendall
2,7 Km
Ristoranti Ristoranti
Locanda Del Borgo Vecchio da Tomino
270 m
La Cascina
350 m
Ristorante Pizzeria San Giorgio
2,1 Km
Osteria a Porto d'Oglio
2,2 Km
SoleBistro
2,5 Km
Mostra tutto

Caratteristiche

Rif.:
61124171
Piano:
Terra di 1
Totale piani:
1
Posti auto:
50
Condizionamento:
Assente
Ascensore:
No
Mostra tutto
Prezzo Prezzo
€ 1.500 / mese
Spese annue Spese annue
€ 0

Altre caratteristiche

Descrizione dei locali
Bagno Con Finestra

Classe Energetica

Questo immobile è esente da classe energetica
Anno di costruzione:
2000
Riscaldamento:
Assente

Ti interessa visionare l'immobile?

Fissa un appuntamento  Fissa un appuntamento

Richiedi informazioni

* Questi campi sono obbligatori
Affiliato
Industriale Chiari Srl
Via Brescia, 41 25032 Chiari (BS)

Il nostro staff


  • Debora Defendi
    Coordinatrice

  • Taslim Hasan
    Collaboratore

  • Alan El Fadel
    Collaboratore

  • Nicolò Poli
    Collaboratore

  • Valentino Stellato
    Collaboratore

  • Federica Toresini
    Affiliata
Via Brescia, 41 25032 Chiari (BS)
Zona: Chiari-Palazzolo-Orzinuovi-Ovest Bresciano
Mostra su mappa
Orari: Lunedì / Venerdì 08.30 12.30 - 13.30 19.00 Sabato 08.30 12.00
Affiliato
Industriale Chiari Srl
Via Brescia, 41 25032 Chiari (BS)

2025 Tecnocasa Franchising S.p.A. - P. IVA 08365160152 - Via Monte Bianco 60/A 20089 Rozzano (MI). Ogni agenzia ha un proprio titolare ed è autonoma. Privacy policy | Policy utilizzo | Cookie policy