Negozio in vendita

Orzinuovi, via lonato
€ 2.000.000
10 locali 10 locali
1050 Mq 1050 Mq
4 bagni 4 bagni

Negozio in vendita

Orzinuovi, via lonato

Descrizione annuncio

COSA SAPERE DELL'IMMOBILE


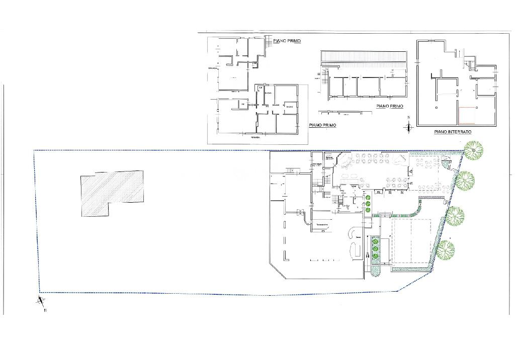
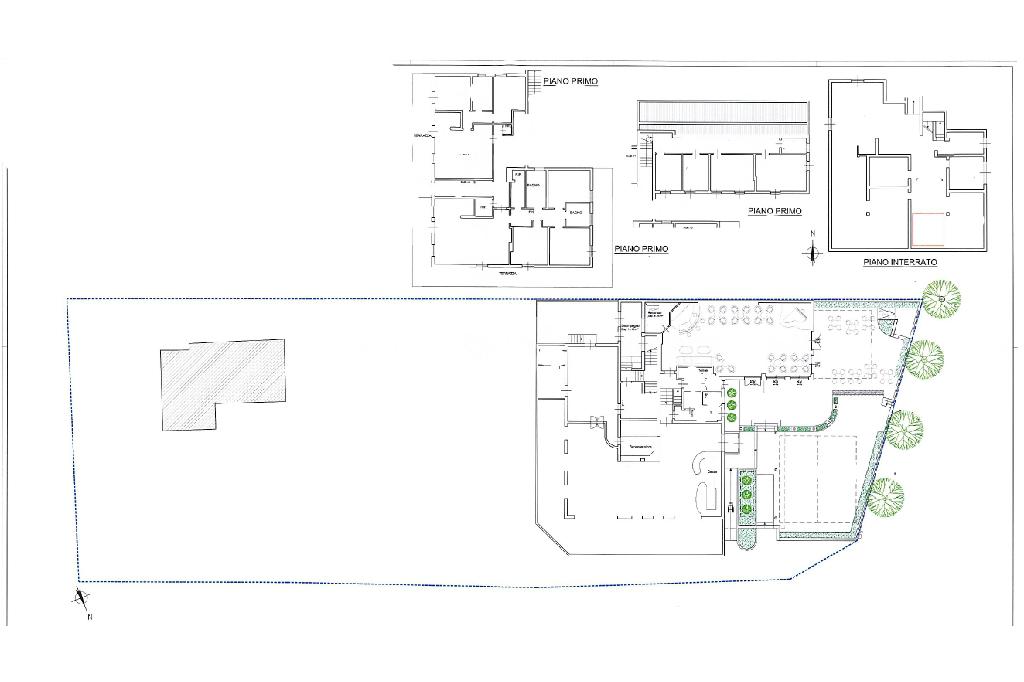
Proponiamo in vendita un Negozio che misura circa 1.050 metri quadrati.

DESCRIZIONE E PARTICOLARITÀ

La soluzione proposta in vendita è un negozio di ampie dimensioni, che si sviluppa su più livelli per una superficie interna complessiva di circa 1.150 metri quadrati, oltre a due aree esterne esclusive di ca 1.300 e 400 metri quadrati. Al piano terra si trova un negozio completamente vetrato, della superficie di circa 450 metri quadrati, suddiviso in tre ampi locali principali. La zona commerciale è dotata di tre servizi igienici, di cui uno a norma per persone con disabilità. Al piano interrato troviamo una cantina di circa 300 metri quadrati suddivisa in cinque locali, ideale come deposito o spazio di servizio. Il primo piano è servito da scala interna e ospita una zona spogliatoio di circa 100 metri quadrati compresa di tre locali privati e un bagno. Sempre al primo piano sono presenti due appartamenti: uno di circa 80 metri quadrati e l'altro di circa 140 metri quadrati. L'intero immobile è dotato degli impianti elettrico, impianto di illuminazione, di riscaldamento di condizionamento caldo/freddo. A completare la soluzione sono due distinte aree esterne: una di circa 400 metri quadrati utilizzabile come dehor e una seconda di circa 1.300 metri quadrati adibita a parcheggio privato con un magazzino di circa 80 metri quadrati, con possibilità di cambio destinazione d'uso in negozio.

L'immobile sarà libero a partire dal 01/01/2026

UBICAZIONE E CONTESTO

La soluzione si trova nel comune di Orzinuovi, in una zona residenziale ben servita vicina al centro e caratterizzata da attività commerciali.

Mostra tutto

Nelle vicinanze

Trasporto pubblico Trasporto pubblico
Trasporto pubblico
1,1 Km
Scuole Scuole
Scuola Media G.B. Corniani
520 m
Istituto D'Istruzione Superiore G. Cossali
2,1 Km
Farmacia Farmacia
Farmacia dott. Magli
330 m
Farmacia Centrale Dr. Tinti
340 m
Farmacia Adua
850 m
Ospedali Ospedali
Ospedale Tribandi Pavoni
270 m
Poliambulatorio Bongi
710 m
Supermercati Supermercati
Famila
420 m
Lidl
790 m
Iper Simply
790 m
Penny
810 m
Trony
940 m
Negozi Negozi
Panificio Guarischi
90 m
Snoopy
340 m
Kosmo
360 m
Omnibus Company Di Gipponi Daniele & C. S.A.S.
410 m
Golf Club Bouique
420 m
Bar Bar
Florian
340 m
Nolita Cafè
340 m
Le Cafè
350 m
Bar Centrale
370 m
Blanco Cafè
370 m
Ristoranti Ristoranti
Ristorante Delfino
10 m
Pizzeria Bella Napoli
370 m
Enoteca Centrale
370 m
La Bottega Dell'Oste
400 m
Il Cantinone
430 m
Mostra tutto

Caratteristiche

Rif.:
61129052
Piano:
Su più livelli di 2
Totale piani:
2
Posti auto:
50
Condizionamento:
Autonomo
Ascensore:
No
Mostra tutto
Prezzo Prezzo
€ 2.000.000
Rata mutuo Rata mutuo
€ 9.440 / mese
Spese annue Spese annue
€ 0
Proponi il tuo prezzoProponi il tuo prezzo

Altre caratteristiche

Descrizione dei locali
Bagno Con Finestra

Classe Energetica

Questo immobile è esente da classe energetica
Anno di costruzione:
1990
Riscaldamento:
Autonomo
Tipo impianto:
Ad aria
Tipo alimentazione:
Altro

Ti interessa visionare l'immobile?

Fissa un appuntamento  Fissa un appuntamento

Richiedi informazioni

Clicca su Leggi per aprire l'informativa
* Questi campi sono obbligatori

Calcola il tuo mutuo

Semplice e senza impegno
Anticipo

( % )
Mutuo

( % )

pochi semplici passi

inserisci i tuoi dati
Questionario completato
Grazie per aver richiesto un appuntamento senza impegno con un nostro Consulente del Credito e Assicurativo.

Hai inserito correttamente tutti i dati necessari e a breve riceverai una e-mail con un link da convalidare per inviare i tuoi dati.
Affiliato
Industriale Chiari Srl
Via Brescia, 41 25032 Chiari (BS)

Il nostro staff


  • Luca Coti Zelati
    Collaboratore

  • Michela Cavalleri
    Coordinatrice

  • Taslim Hasan
    Collaboratore

  • Nicolò Poli
    Collaboratore

  • Valentino Stellato
    Collaboratore

  • Federica Toresini
    Affiliata

  • Susanna Ye
    Collaboratrice
Via Brescia, 41 25032 Chiari (BS)
Zona: Chiari-Palazzolo-Orzinuovi-Ovest Bresciano
Mostra su mappa
Orari: Lunedì / Venerdì 08.30 12.30 - 13.30 19.00 Sabato 08.30 12.00
Affiliato
Industriale Chiari Srl
Via Brescia, 41 25032 Chiari (BS)

2025 Tecnocasa Franchising S.p.A. - P. IVA 08365160152 - Via Monte Bianco 60/A 20089 Rozzano (MI). Ogni agenzia ha un proprio titolare ed è autonoma. Privacy policy | Policy utilizzo | Cookie policy