Ufficio in vendita

Pompiano, via michelangelo buonarroti
€ 150.000
1 locale 1 locale
400 Mq 400 Mq

Ufficio in vendita

Pompiano, via michelangelo buonarroti

Descrizione annuncio

COSA SAPERE DELL'IMMOBILE

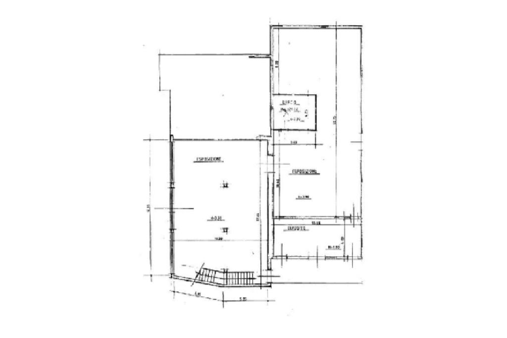
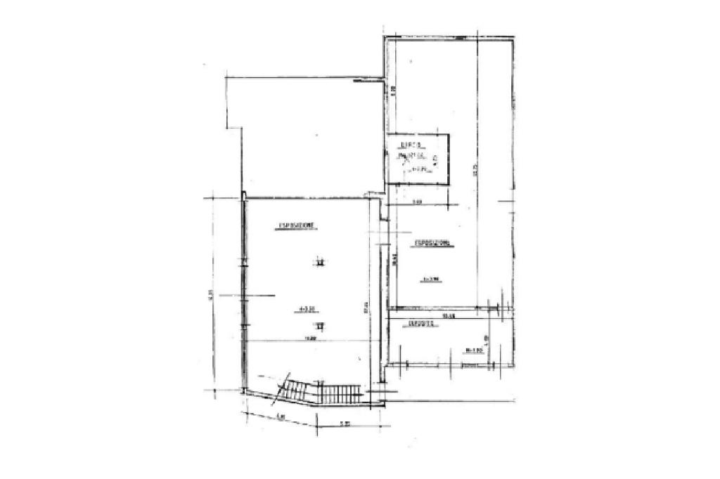
Proponiamo esclusivamente in vendita un ufficio con superficie di circa 400 metri quadrati inserito al piano terra e piano primo.

DESCRIZIONE E PARTICOLARITA'

l'immobile proposto in vendita dispone di una superficie commerciale di circa 400 metri quadrati che si sviluppa lungo due diversi livelli, al piano terra ed al piano primo. Internamente troviamo un ambiente attualmente diviso in diverse stanze da pareti in è dotato di impianto elettrico, impianto di illuminazione.

UBICAZIONE E CONTESTO

l'ufficio sorge nel paese di Pompiano, lungo la strada principale che lo connette con la cittadina di Orzinuovi. Nelle immediate vicinanze troviamo diverse attività commerciali oltre a diversi parcheggi.

Mostra tutto

Nelle vicinanze

Ricariche auto elettriche Ricariche auto elettriche
Municipio di Corzano | EnelX
2,3 Km
Scuole Scuole
Scuole
2,7 Km
Ristoranti Ristoranti
Agriturismo Cascina Vittoria
2,2 Km
Mostra tutto

Caratteristiche

Rif.:
61113351
Piano:
Su più livelli di 2
Totale piani:
2
Posti auto:
2
Condizionamento:
Assente
Ascensore:
No
Mostra tutto
Prezzo Prezzo
€ 150.000
Rata mutuo Rata mutuo
€ 689 / mese
Spese annue Spese annue
€ 0
Proponi il tuo prezzoProponi il tuo prezzo

Altre caratteristiche

Classe Energetica

Questo immobile è esente da classe energetica
Anno di costruzione:
1960
Riscaldamento:
Assente

Ti interessa visionare l'immobile?

Fissa un appuntamento  Fissa un appuntamento

Richiedi informazioni

* Questi campi sono obbligatori

Calcola il tuo mutuo

Semplice e senza impegno
Anticipo

( % )
Mutuo

( % )

pochi semplici passi

inserisci i tuoi dati
Questionario completato
Grazie per aver richiesto un appuntamento senza impegno con un nostro Consulente del Credito e Assicurativo.

Hai inserito correttamente tutti i dati necessari e a breve riceverai una e-mail con un link da convalidare per inviare i tuoi dati.
Affiliato
Industriale Chiari Srl
Via Brescia, 41 25032 Chiari (BS)

Il nostro staff


  • Luca Coti Zelati
    Collaboratore

  • Michela Cavalleri
    Coordinatrice

  • Taslim Hasan
    Collaboratore

  • Nicolò Poli
    Collaboratore

  • Valentino Stellato
    Collaboratore

  • Federica Toresini
    Affiliata
Via Brescia, 41 25032 Chiari (BS)
Zona: Chiari-Palazzolo-Orzinuovi-Ovest Bresciano
Mostra su mappa
Orari: Lunedì / Venerdì 08.30 12.30 - 13.30 19.00 Sabato 08.30 12.00
Affiliato
Industriale Chiari Srl
Via Brescia, 41 25032 Chiari (BS)

2025 Tecnocasa Franchising S.p.A. - P. IVA 08365160152 - Via Monte Bianco 60/A 20089 Rozzano (MI). Ogni agenzia ha un proprio titolare ed è autonoma. Privacy policy | Policy utilizzo | Cookie policy