Ufficio in vendita

Roccafranca, Via Milano
€ 460.000
1 locale 1 locale
350 Mq 350 Mq
1 bagno 1 bagno

Ufficio in vendita

Roccafranca, Via Milano

Descrizione annuncio

COSA SAPERE DELL'IMMOBILE

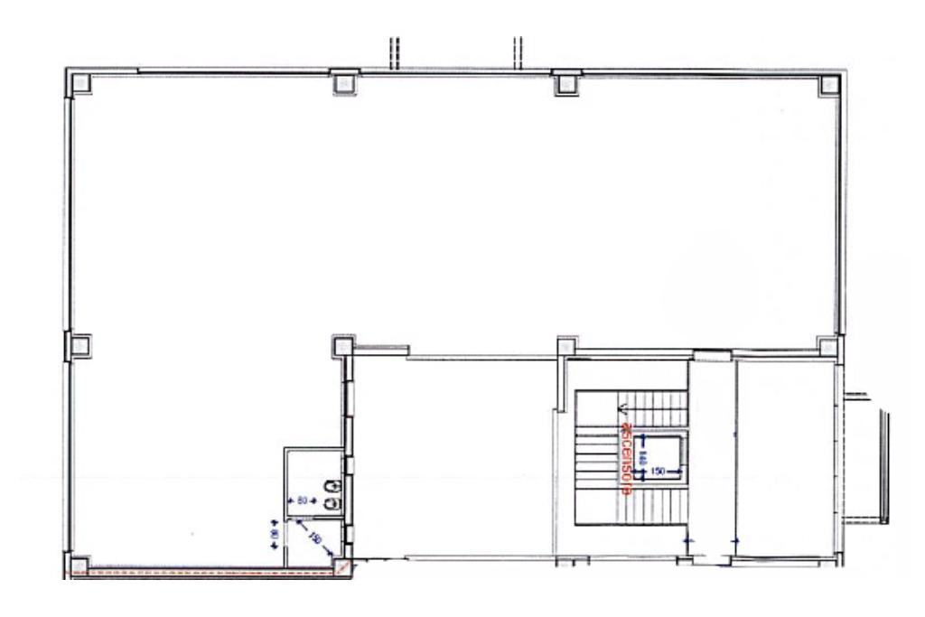
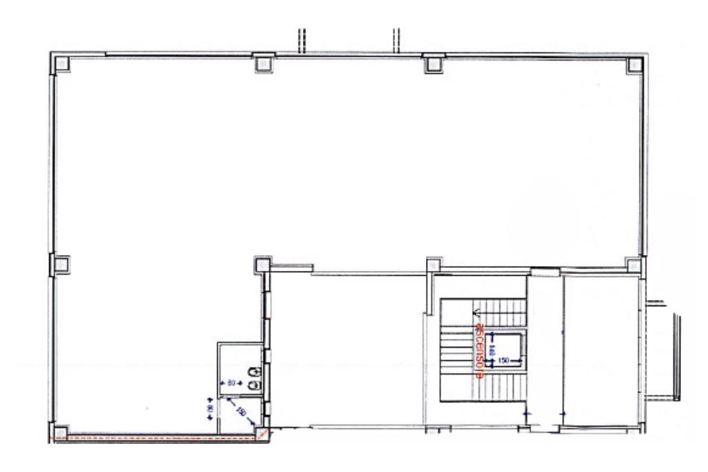
Proponiamo in vendita un progetto di ufficio di circa 350 metri quadrati, situato al piano primo di un edificio indipendente sviluppato su un unico livello. La consegna è prevista per l’inizio del prossimo anno.

DESCRIZIONE E PARTICOLARITÀ

L’immobile, con una superficie calpestabile di circa 350 metri quadrati, è interamente disposto al piano primo e si presenta come un ampio open-space; Esso sarà dotato di impianto elettrico, illuminazione e riscaldamento/condizionamento ad aria.
È previsto inoltre un servizio igienico a norma per disabili e la presenza di un ascensore che garantirà un comodo accesso ai locali.

UBICAZIONE E CONTESTO

L’ufficio è situato a Roccafranca (BS), in una zona ben collegata e facilmente raggiungibile.
A disposizione della clientela ci saranno 50 posti auto.

Mostra tutto

Nelle vicinanze

Farmacia Farmacia
Farmacia Grisoli
600 m
Farmacia Vitali Sara
1,8 Km
Negozi Negozi
Guagni
540 m
Bar Bar
Via Vai
520 m
Barrasettanta
560 m
Tropical
860 m
Bar Tabacchi Claro Café
1,4 Km
Bar
2,3 Km
Ristoranti Ristoranti
Il Buongustaio
550 m
Trattoria "S. Antonio"
660 m
Mostra tutto

Caratteristiche

Rif.:
61139576
Piano:
1 di 1 con ascensore (Piano medio)
Posti auto:
50
Condizionamento:
Autonomo
Ascensore:
Riscaldamento:
Autonomo
Mostra tutto
Prezzo Prezzo
€ 460.000
Rata mutuo Rata mutuo
€ 2.171 / mese
Spese annue Spese annue
€ 0
Proponi il tuo prezzoProponi il tuo prezzo

Classe Energetica

Questo immobile è esente da classe energetica
Anno di costruzione:
2026
Riscaldamento:
Autonomo
Tipo impianto:
Ad aria
Tipo alimentazione:
Altro

Ti interessa visionare l'immobile?

Fissa un appuntamento  Fissa un appuntamento

Richiedi informazioni

Clicca su Leggi per aprire l'informativa
* Questi campi sono obbligatori

Calcola il tuo mutuo

Semplice e senza impegno
Anticipo

( % )
Mutuo

( % )

pochi semplici passi

inserisci i tuoi dati
Questionario completato
Grazie per aver richiesto un appuntamento senza impegno con un nostro Consulente del Credito e Assicurativo.

Hai inserito correttamente tutti i dati necessari e a breve riceverai una e-mail con un link da convalidare per inviare i tuoi dati.
Affiliato
Industriale Chiari Srl
Via Brescia, 41 25032 Chiari (BS)

Il nostro staff


  • Luca Coti Zelati
    Collaboratore

  • Michela Cavalleri
    Coordinatrice

  • Taslim Hasan
    Collaboratore

  • Nicolò Poli
    Collaboratore

  • Valentino Stellato
    Collaboratore

  • Federica Toresini
    Affiliata

  • Susanna Ye
    Collaboratrice
Via Brescia, 41 25032 Chiari (BS)
Zona: Chiari-Palazzolo-Orzinuovi-Ovest Bresciano
Mostra su mappa
Orari: Lunedì / Venerdì 08.30 12.30 - 13.30 19.00 Sabato 08.30 12.00
Affiliato
Industriale Chiari Srl
Via Brescia, 41 25032 Chiari (BS)

2025 Tecnocasa Franchising S.p.A. - P. IVA 08365160152 - Via Monte Bianco 60/A 20089 Rozzano (MI). Ogni agenzia ha un proprio titolare ed è autonoma. Privacy policy | Policy utilizzo | Cookie policy