Capannone in vendita

Rudiano, Via Lavoro ed Industria
Informazioni in agenzia
1 locale 1 locale
3500 Mq 3500 Mq
8 bagni 8 bagni

Capannone in vendita

Rudiano, Via Lavoro ed Industria

Descrizione annuncio

COSA SAPERE DELL'IMMOBILE

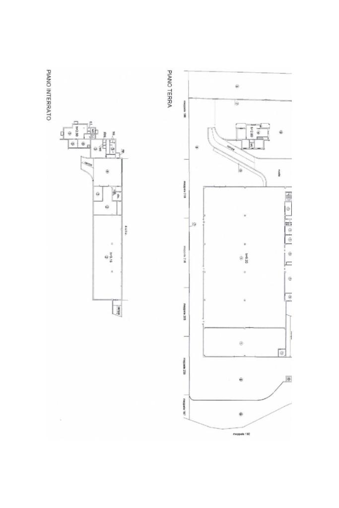
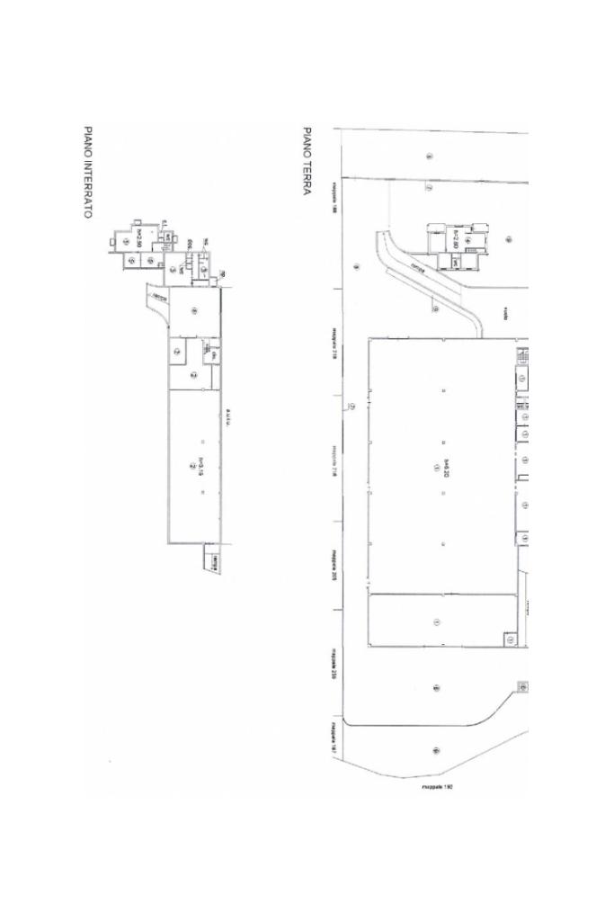
Proponiamo in vendita un capannone industriale con superficie complessiva di circa 3.500 metri quadrati. La soluzione si sviluppa tra piano interrato e piano terra.

DESCRIZIONE E PARTICOLARITÀ

Il capannone industriale proposto in vendita presenta una superficie di ca 3.500mq ed un'area esterna esclusiva di ca 3.200mq. L’immobile è dotato dei principali impianti: elettrico, di illuminazione, di riscaldamento e di allarme. Sono presenti otto servizi igienici privati e spogliatoi completi di docce, così come un piccolo locale adibito a mensa. Al piano terra vi è un edificio produttivo di ca 2800mq (altezza 6.20m sottotrave) e l'area uffici di ca 120mq. Al piano interrato, accessibile dall'esterno mediante scivolo di prorietà esclusiva (oltre che da scala interna), vi è un locale di ca 200mq adibito a deposito (altezza 3.15m sottotrave) ed un'area uffici di ca 60mq. L'accesso all'immobile è facilitato dalla presenza di due portoni di altezza 4m.

UBICAZIONE E CONTESTO

L'immobile proposto in vendita è situato nel comune di Rudiano, in una zona industriale comoda, ben collegata e facilmente accessibile. La proprietà è completata da un'area esterna esclusiva utilizzabile anche come area di manovra e parcheggio.

Mostra tutto

Nelle vicinanze

Farmacia Farmacia
Farmacia Grisoli
2,6 Km
Negozi Negozi
Guagni
2,7 Km
Bar Bar
Tropical
2,4 Km
Barrasettanta
2,7 Km
Via Vai
2,8 Km
Bar
3,0 Km
Ristoranti Ristoranti
Trattoria "S. Antonio"
2,6 Km
Il Buongustaio
2,7 Km
Mostra tutto

Caratteristiche

Rif.:
61199494
Piano:
Terra di 1
Totale piani:
1
Posti auto:
30
Condizionamento:
Autonomo
Ascensore:
No
Mostra tutto
Prezzo Prezzo
Informazioni in agenzia
Spese annue Spese annue
€ 0
Proponi il tuo prezzoProponi il tuo prezzo

Classe Energetica

Questo immobile è esente da classe energetica
Anno di costruzione:
1997
Riscaldamento:
Autonomo
Tipo impianto:
A radiatori
Tipo alimentazione:
Metano

Ti interessa visionare l'immobile?

Fissa un appuntamento  Fissa un appuntamento

Richiedi informazioni

Clicca su Leggi per aprire l'informativa
* Questi campi sono obbligatori
Affiliato
Industriale Chiari Srl
Via Brescia, 41 25032 Chiari (BS)

Il nostro staff


  • Nicolò Poli
    Collaboratore

  • Laura Shkomi
    Coordinatrice

  • Simone Tengattini
    Collaboratore

  • Federica Toresini
    Affiliata
Via Brescia, 41 25032 Chiari (BS)
Zona: Chiari-Palazzolo-Orzinuovi-Ovest Bresciano
Mostra su mappa
Orari: Lunedì / Venerdì 08.30 12.30 - 13.30 19.00 Sabato 08.30 12.00
Affiliato
Industriale Chiari Srl
Via Brescia, 41 25032 Chiari (BS)

2026 Tecnocasa Franchising S.p.A. - P. IVA 08365160152 - Via Monte Bianco 60/A 20089 Rozzano (MI). Ogni agenzia ha un proprio titolare ed è autonoma. Privacy policy | Policy utilizzo | Cookie policy