Ufficio in affitto

Urago D'Oglio, via fermi
€ 960 / mese
5 locali 5 locali
510 Mq 510 Mq
9 bagni 9 bagni

Ufficio in affitto

Urago D'Oglio, via fermi

Descrizione annuncio

COSA SAPERE DELL'IMMOBILE

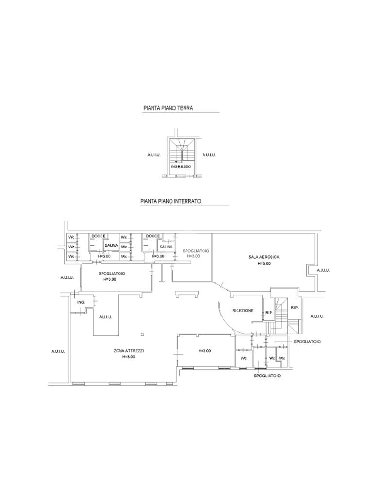
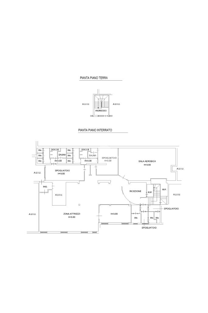
Proponiamo in locazione un ufficio di circa 510 metri quadrati disposto al piano interrato di un edificio residenziale e commerciale di tre piani.

DESCRIZIONE E PARTICOLARITA'

La soluzione in locazione dispone di una superficie calpestabile di circa 510 metri quadrati. Lo spazio al piano interrato è diviso in cinque locali con diversi disimpegni. L'immobile è provvisto degli impianti elettrico, di illuminazione, di riscaldamento e di condizionamento ad aria; sono inoltre presenti nove servizi igienici privati, alcuni a norma disabili, con antibagno.
Sono presenti due diversi accessi pedonali, uno al piano terra e uno al piano interrato.

UBICAZIONE E CONTESTO

Il negozio si trova in una zona residenziale e ad alto scorrimento del Comune di Urago d’Oglio e beneficia di una cinquantina di posti auto reperibili nelle immediate vicinanze.

Mostra tutto

Nelle vicinanze

Trasporto pubblico Trasporto pubblico
Calcio
Calcio
2,8 Km
Ricariche auto elettriche Ricariche auto elettriche
Centro Sportivo Comunale Calcio | Ressolar
1,7 Km
Supermercati Supermercati
Conad city
60 m
Coop
580 m
Bar Bar
Bar Pavone
1,8 Km
Bar
2,0 Km
Ristoranti Ristoranti
Belvedere
220 m
Mostra tutto

Caratteristiche

Rif.:
61152198
Piano:
Seminterrato di 3
Totale piani:
3
Posti auto:
50
Condizionamento:
Autonomo
Ascensore:
No
Mostra tutto
Prezzo Prezzo
€ 960 / mese
Spese annue Spese annue
€ 5.000

Altre caratteristiche

Descrizione dei locali
Bagno Con Finestra

Classe Energetica

Questo immobile è esente da classe energetica
Anno di costruzione:
2007
Riscaldamento:
Autonomo
Tipo impianto:
Ad aria
Tipo alimentazione:
Altro

Ti interessa visionare l'immobile?

Fissa un appuntamento  Fissa un appuntamento

Richiedi informazioni

Clicca su Leggi per aprire l'informativa
* Questi campi sono obbligatori
Affiliato
Industriale Chiari Srl
Via Brescia, 41 25032 Chiari (BS)

Il nostro staff


  • Luca Coti Zelati
    Collaboratore

  • Michela Cavalleri
    Coordinatrice

  • Taslim Hasan
    Collaboratore

  • Nicolò Poli
    Collaboratore

  • Valentino Stellato
    Collaboratore

  • Federica Toresini
    Affiliata

  • Susanna Ye
    Collaboratrice
Via Brescia, 41 25032 Chiari (BS)
Zona: Chiari-Palazzolo-Orzinuovi-Ovest Bresciano
Mostra su mappa
Orari: Lunedì / Venerdì 08.30 12.30 - 13.30 19.00 Sabato 08.30 12.00
Affiliato
Industriale Chiari Srl
Via Brescia, 41 25032 Chiari (BS)

2025 Tecnocasa Franchising S.p.A. - P. IVA 08365160152 - Via Monte Bianco 60/A 20089 Rozzano (MI). Ogni agenzia ha un proprio titolare ed è autonoma. Privacy policy | Policy utilizzo | Cookie policy